+7(3952)67-68-05   

Меню

  Калькулятор строительства
 

+7(3952)67-68-05

пн-пт с 10.00 до 19.00

Telegram


5% - 20% - 10%
5% СКИДКА НА СТРОИТЕЛЬНЫЕ РАБОТЫ
20% СКИДКА НА ОТДЕЛКУ И МАТЕРИАЛЫ
ДО 10% КЭШБЭК НА КАРТУ
до 15 февраля 2026 года
МЕНЮ
... Стройка счастливого дома начинается здесь ...

 

Главная - Проекты - Проект Z38

 

 

 

Распечатать проект дома

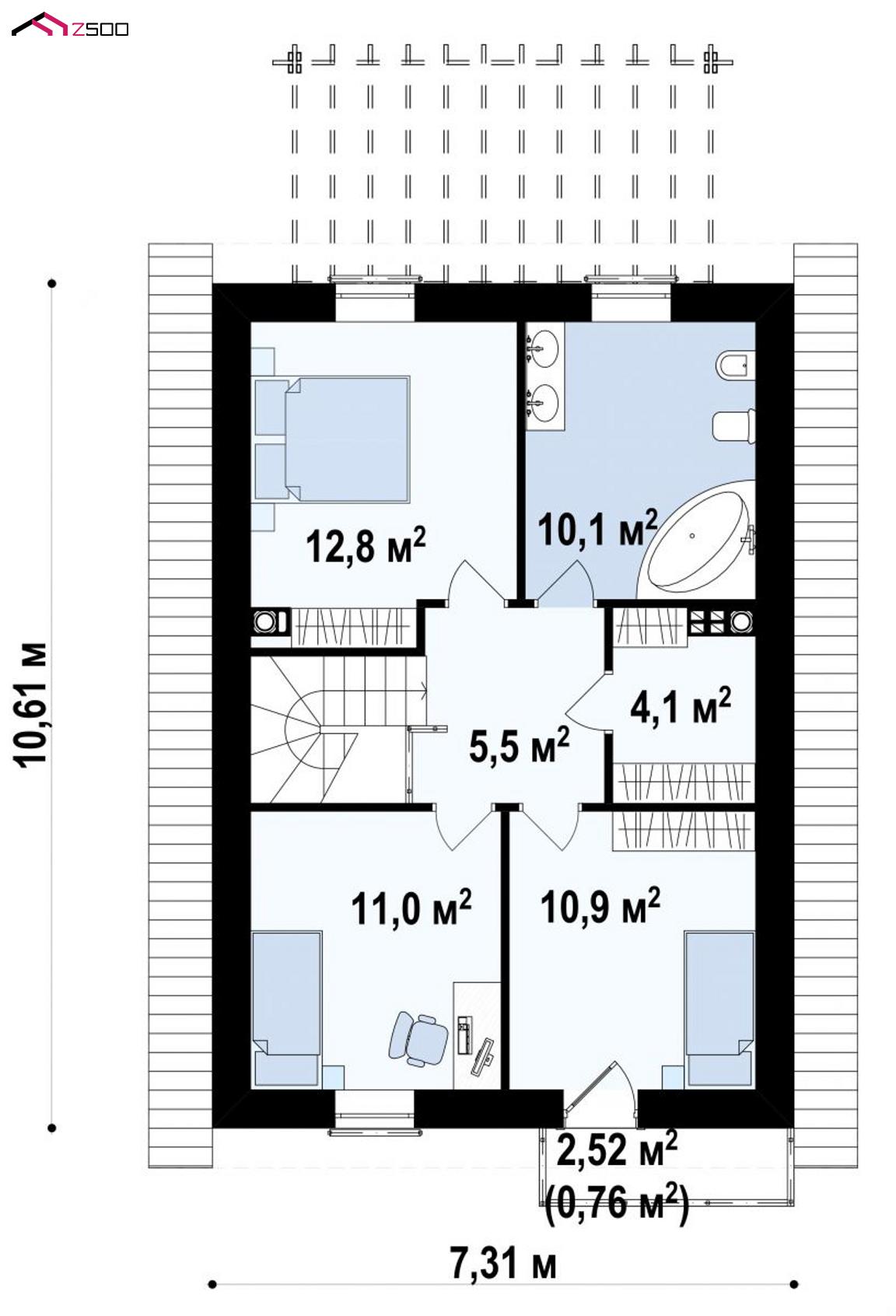
Проект Z38 - 113,3 м2

размеры: 10 x 7

точные размеры 10,38 x 7,08

Открыть на сайте проектировщика

 

 

Показать зеркально


Показать зеркально

 

Площади
Площадь общая 113,3 м2
Площадь жилая 65,5 м2
Площадь застройки 109,6 м2
Варианты исполнения
Газобетон
Дерев. каркас
ЛСТК каркас
Дополнительно
Кубатура 635,47 м3
Высота 7,38 м
Угол наклона кровли 30 °
Площадь кровли 110,06 м2

Купить проект на сайте проектировщика за 33500 руб

 

 

ЦЕНЫ на СТРОИТЕЛЬСТВО по проекту Z38

ГАЗОБЕТОН

 

Под ключ

8497500 руб

 

С наруж. коммуник.

8610800 руб

читать о комплектациях...
КАРКАС ЛСТК

 

Под ключ

7931000 руб

 

С наруж. коммуник.

8044300 руб

читать о комплектациях
КАРКАС ДЕРЕВЯННЫЙ

 

Под ключ

7704400 руб

 

С наруж. коммуник.

7817700 руб

читать о комплектациях...

 

 

- Цены включают в себя стоимость работ и материалов.

- Расчёты произведены исходя из минимальной стандартной комплектации дома. При изменении вида отделочных и строительных материалов конечная цена может измениться.

- Цена не включает стоимость транспортных расходов для отдаленных районов.

- Цена не включает стоимость работ по благоустройству территории, строительству надворных построек, строительству забора и пр.

- Стоимость фундамента расчитана исходя из горизонтального расположения грунта.

- В цену не включена стоимость участка.

- Цена не учитывает, действующие на данный момент, акционные скидки. При заключении договора скидки будут учтены.

 

СРОК СТРОИТЕЛЬСТВА - от 2 до 8 месяцев. Зависит от варианта исполнения, комплектации, времени года и погодных условий.

 

ЗАКАЗАТЬ строительство этого дома в Иркутске

 

 

КУПИТЬ ЛСТК ДОМОКОМПЛЕКТ

 

По запросу возможно симметричное отображение всего проекта (отзеркаливание), а также переработка для необходимой ориентации по сторонам света или расположению на участке.

 

Вариант исполнения и материалы отделки выбирает заказчик.

 

 

Варианты фундамента:

  • Ленточный малозаглубленный
  • Столбчато-ленточный
  • Монолитная плита
  • Свайно-винтовой
  • Свайно-забивной

 

Варианты материала стен:

  • Газобетонные блоки 600*400*300 (и др) плотностью D600+сейсмопояс и монолитные железобетонные балки/стойки.
  • Доска 50 мм сосна нестроганная.
  • Оцинкованный ЛСТК профиль 145 мм + брусок 2*50мм

 

Варианты утепления стен:

  • Базальтовая минвата: 100-200 мм
  • Эковата 150-250 мм.
  • Экструдированный пенополистирол 2/3*50/100 мм
  • Пенопласт 100/200 мм.
  • Возможна переработка проекта до "энергоэффективного дома с нулевыми теплопотерями"

 

Варианты наружной отделки стен / фасадов

  • Фасадная штукатурка
  • Виниловый сайдинг
  • Виниловый блокхаус
  • Гибкая битумная черепица
  • Деревянный блокхаус
  • Имитация бруса
  • Вагонка
  • Металлопрофиль
  • Металлосайдинг

Читать об отделке фасадов

Дизайн калькулятор подбора фасада

 

Варианты внутренней отделки стен

  • Штукатурка+финишное выравнивание под покраску
  • Штукатурка+финишное выравнивание под обои
  • Шпаклевка+обои
  • Вагонка / имитация бруса

 

Варианты исполнения перекрытий:

  • Брус (нестроганый) 180*180 / 180*100
  • Доска 50 мм сосна нестроганная
  • Доска 25 мм сосна нестроганная
  • Оцинкованный ЛСТК профиль 145 мм + брусок 2*50мм
  • Фанера хвойная сорта не ниже 2/3 7(25)мм
  • Ж/б плита со стяжкой и наливным полом

 

Варианты утепления перекрытий:

  • Базальтовая минвата: 100-300 мм
  • Эковата 150-350 мм.
  • Экструдированный пенополистирол 2/3*50/100 мм
  • Пенопласт 100/200 мм.
  • Возможна переработка проекта до "энергоэффективного дома с нулевыми теплопотерями"

 

Варианты внутренней отделки пола:

  • Половая рейка / вагонка не ниже сорта 2
  • Линолеум
  • Ламинат
  • Паркетная доска
  • Паркет штучный
  • ПВХ плитка
  • Плитка керамическая / керамогранит

 

Варианты утепления мансардной кровли:

  • Базальтовая минвата: 100-300 мм
  • Эковата 150-350 мм.
  • Экструдированный пенополистирол 2/3*50/100 мм
  • Пенопласт 100/200 мм.
  • Возможна переработка проекта до "энергоэффективного дома с нулевыми теплопотерями"

 

Вариатны внутренней отделки потолка:

  • Вагонка не ниже сорта 2
  • Натяжной потолок ПВХ
  • Гипсокартон
  • Штукатурка с финишным выравниванием под покраску

 

Варианты стропильной системы

  • Доска сосна нестроганная+обрешётка/контр-обрешётка из доски 20мм / бруска 50/100 мм.
  • Оцинкованный ЛСТК профиль 145 мм+ OSB-3 плита 12/22мм

 

Варианты кровельного материала:

  • Мягкая черепица
  • Натуральная черепица
  • Композитная черепица
  • Ондулин
  • Профнастил
  • Металлочерепица

Дизайн калькулятор подбора кровли

 

Варианты водосточной системы

  • Классическая оцинкованная открытая по периметру кровли со сливами на 2-4 стороны здания
  • Классическая ПВХ открытая по периметру кровли со сливами на 2-4 стороны здания
  • Медная / обмедненная по периметру кровли со сливами на 2-4 стороны здания

 

Варианты окон:

  • ПВХ 4-х камерные в две нитки по формуле 4+10+4+10+4
  • ПВХ 4-х камерные в две нитки по формуле 4+10+4+10+4 с откосами, подоконниками и отливами
  • ПВХ 6-х камерные в две нитки по формуле 4+10+4+10+4 + UV-стекло
  • ПВХ 6-х камерные в две нитки по формуле 4+10+4+10+4 + UV-стекло с откосами, подоконниками и отливами
  • Деревянные под заказ
  • Деревянные под заказ с откосами, подоконниками и отливами

 

Варианты входных дверей:

  • Металлические класс эконом
  • Металлические класс стандарт
  • Металлические класс люкс

 

Варианты межкомнатных дверей:

  • Филенчатые МДФ класс эконом
  • Филенчатые МДФ класс стандарт
  • Филенчатые МДФ класс люкс
  • Филенчатые из массива древесины
  • Стеклянные или компинированные двери

 

Варианты системы отопления

  • Водяное отопление с электро / газовым котлом и одно/двухтрубной системой
  • Водяное отопление с электро / газовым и твердотопливным котлом и одно/двухтрубной системой
  • Кабельный электрический теплый пол
  • Водяной теплый пол

 

Варианты системы водоснабжения:

  • С нагревом от второго контура котла
  • С накопительными водонагревателями

 

Варианты системы внутренней канализации:

  • ПВХ классическая с общими стояками и наружной разводкой
  • ПВХ классическая с общими стояками и цокольной разводкой

 

Система вентиляции:

  • Раздельная с проходными элементами кровли и вентиляционными выходами
  • Приточная, оснащенная системой рекуперации, догрева и очистки.

 

Варианты септиков / выгребных ям:

  • Однокамерный, три ж/б кольца+горловина+полимерпесчаный люк + подводка к зданию
  • Двухкамерный, три ж/б кольца+горловина+полимерпесчаный люк + подводка к зданию
  • Трехкамерный, три ж/б кольца+горловина+полимерпесчаный люк + подводка к зданию
  • Пластиковый многокамерный, с устройством поля рассеивания.

 

Скважина

  • Бурение от 10 до 150 м методом колонкового или шнекового бурения с обсадной трубой и промывкой + 0.8 м кессон из кирпичной кладки с полимерпесчаными люком и трубопроводом с греющим кабелем
  • Бурение от 10 до 150 м методом колонкового или шнекового бурения с обсадной трубой и промывкой + кессон 3 ж/б кольца с горловиной и полимерпесчаным люком

 

Варианты отмостки

  • Классическая 0,8 м по периметру здания с бетонированием по арматурной сетке с подсыпкой ПГС/гравием 200мм.
  • Мягкая полимерная на глубине 300-400 мм по периметру здания.

 

 

 

 

-5%
Закажи строительство дома до 15 февраля 2026 и получи скидку 5% на все строительные работы и 20% - на отделочные
Экономия до 400 000 рублей.

Расчет стоимости дома

 

ХОЧЕШЬ ТЁПЛЫЙ ДОМ - ЗВОНИ

Вызови бесплатно замерщика 67-68-05

8(3952) 67-68-05